wykład Rodzaje ujęć

Nasza ocena:

3
Pobrań: 42
Wyświetleń: 329
Komentarze: 0
Notatek.pl

Pobierz ten dokument za darmo

Podgląd dokumentu
wykład Rodzaje ujęć - strona 1 wykład Rodzaje ujęć - strona 2

Fragment notatki:

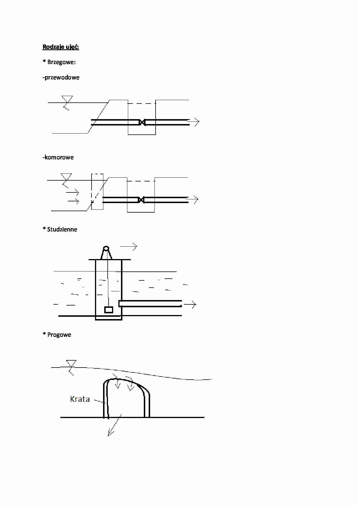
Rodzaje ujęć:
* Brzegowe:
-przewodowe
-komorowe
* Studzienne
* Progowe
* Przelewowe
* Kanałowe
* Zatokowe
* Infiltracyjne
* Drenażowe
... zobacz całą notatkę



Komentarze użytkowników (0)

Zaloguj się, aby dodać komentarz