przekrój poprzeczny hali

Nasza ocena:

3
Pobrań: 91
Wyświetleń: 1435
Komentarze: 0
Notatek.pl

Pobierz ten dokument za darmo

Podgląd dokumentu
przekrój poprzeczny hali - strona 1

Fragment notatki:

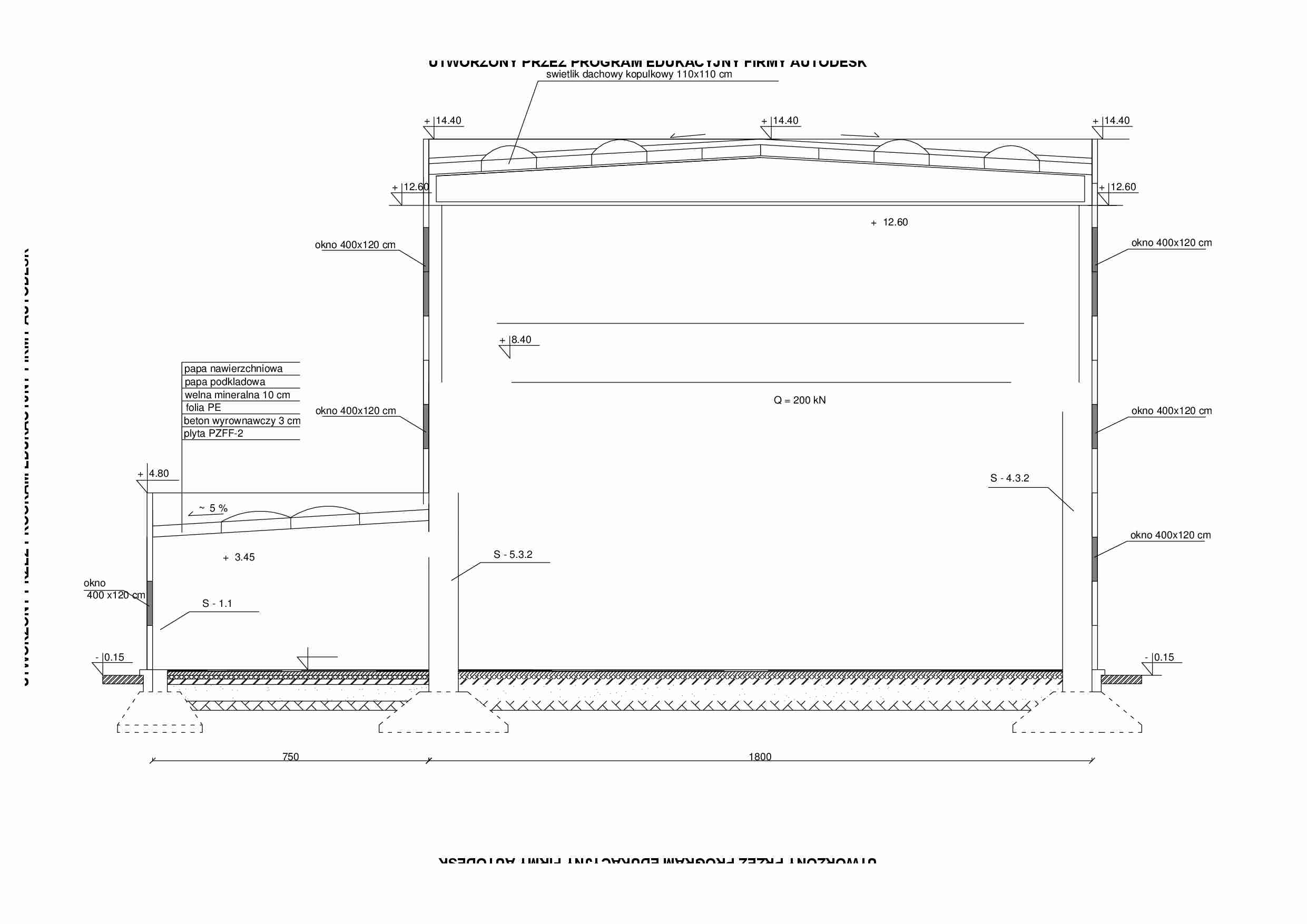
UTWORZONY PRZEZ PROGRAM EDUKACYJNY FIRMY AUTODESK
swietlik dachowy kopulkowy 110x110 cm
+ 14.40
+ 14.40
+ 14.40
~ 5%
240
120
~ 5%
+ 12.60
120
+ 12.60
okno 400x120 cm
240
120
120
240
okno 400x120 cm
120
okno 400x120 cm
+ 4.80
plyta scienna
Kolbet
120
S - 4.3.2
~ 5%
120
1440
Q = 200 kN
okno 400x120 cm
120
120
120
1440
120
papa nawierzchniowa
papa podkladowa
welna mineralna 10 cm
folia PE
beton wyrownawczy 3 cm
plyta PZFF-2
120
+ 8.40
+ 3.75
120
S - 1.1
0.00
- 0.15
110
110
60
- 0.15
120
okno
400 x120 cm
120
S - 5.3.2
+ 3.45
60
120
120
120
okno 400x120 cm
F
1800
D
posadzka betonowa PCC 3 cm
plyta zelbetowa 10 cm
styropian 10 cm
2x papa na lepiku
warstwa wyrownawcza betonu C12 / 15cm
podsypka ze zwiru 40 cm
grunt
UTWORZONY PRZEZ PROGRAM EDUKACYJNY FIRMY AUTODESK
750
A
UTWORZONY PRZEZ PROGRAM EDUKACYJNY FIRMY AUTODESK
UTWORZONY PRZEZ PROGRAM EDUKACYJNY FIRMY AUTODESK
+ 12.60
... zobacz całą notatkę



Komentarze użytkowników (0)

Zaloguj się, aby dodać komentarz