Instalacje wodno-kanalizacyjne-elementy

Nasza ocena:

3
Pobrań: 35
Wyświetleń: 749
Komentarze: 0
Notatek.pl

Pobierz ten dokument za darmo

Podgląd dokumentu
Instalacje wodno-kanalizacyjne-elementy - strona 1 Instalacje wodno-kanalizacyjne-elementy - strona 2

Fragment notatki:

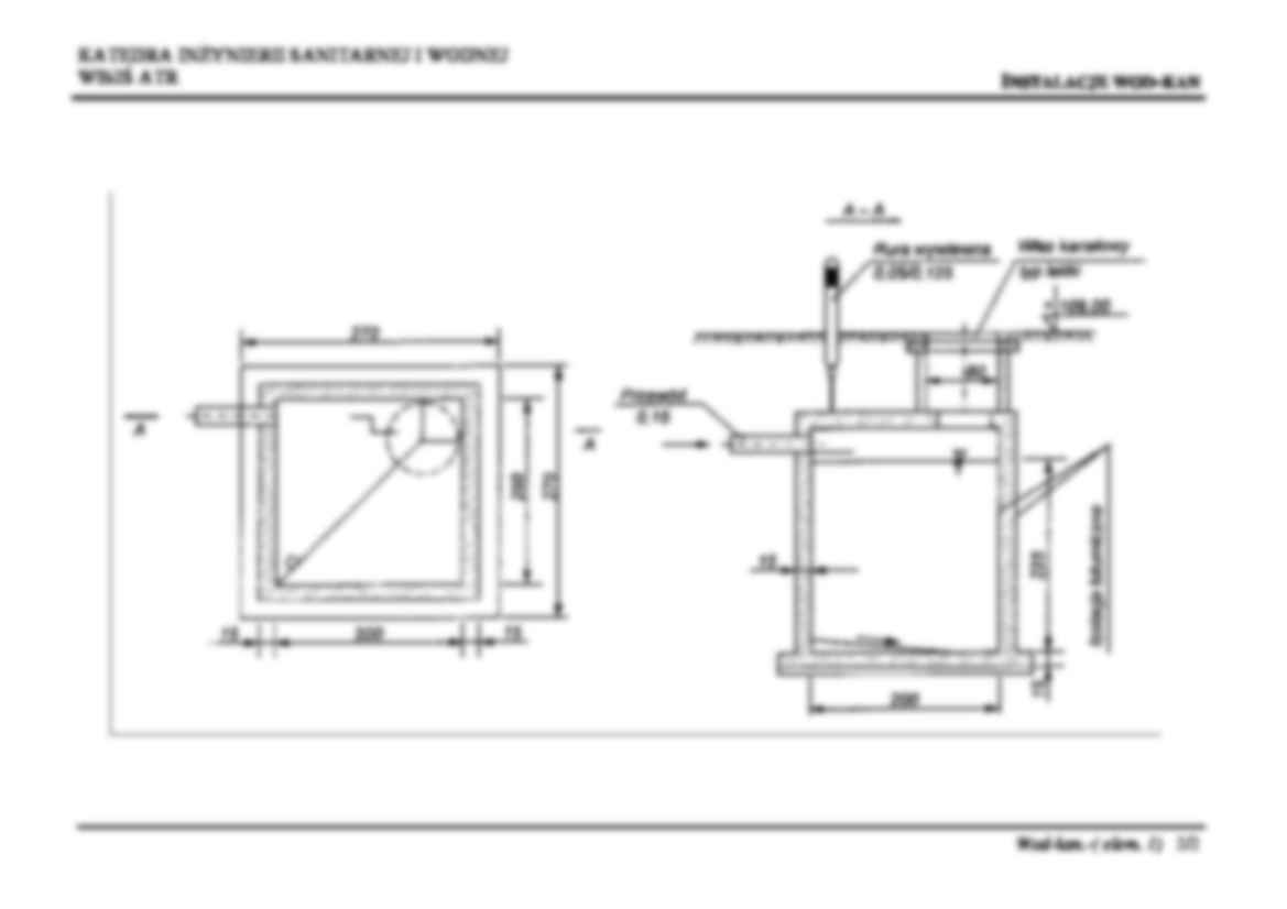
KATEDRA INŻYNIERII SANITARNEJ I WODNEJ     WBiIŚ ATR   INSTALACJE WOD-KAN      Wod-kan.-( elem. 1)    1/2       KATEDRA INŻYNIERII SANITARNEJ I WODNEJ     WBiIŚ ATR   INSTALACJE WOD-KAN              Wod-kan.-( elem. 1)    2/2     ... zobacz całą notatkę



Komentarze użytkowników (0)

Zaloguj się, aby dodać komentarz